RARE! Terrain à bâtir avec permis – Rue de Messine

Description du bien

Vous rêvez de construire votre propre maison dans un environnement calme, tout en restant proche de toutes les commodités ? Ce terrain avec permis de bâtir est fait pour vous !

DETAILS
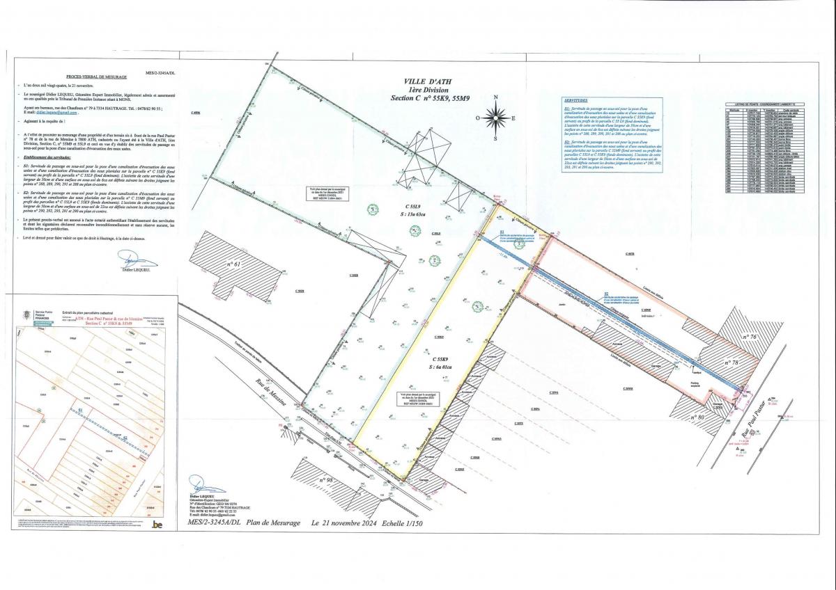
Superficie : 6 ares 01 centiare (601 m²)
Largeur : ± 11 mètres
Profondeur : ± 51 mètres
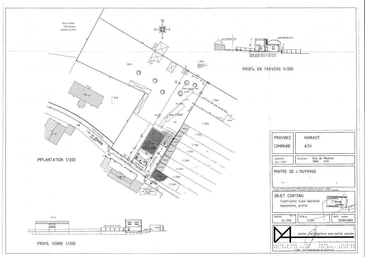
Environnement : quartier résidentiel paisible et apprécié, à proximité du centre d’Ath (gare accessible à pied)
Parcelle cadastrée à Ath 1ère division section C n° 55k9
Banque de donnée de l'état des sols : rien à signaler
En zone d'habitat au plan de secteur 

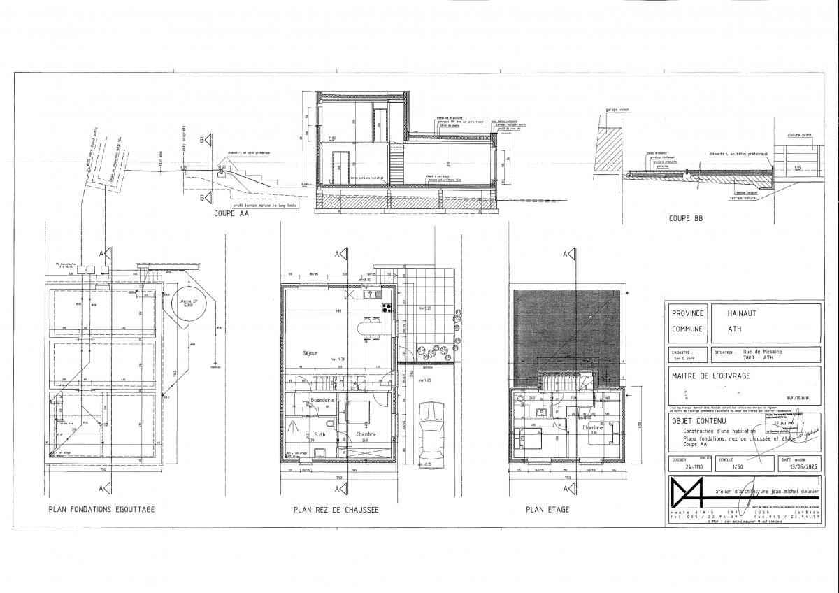
🏡 Maison unifamiliale 4 façades d'environ 90m² habitables prévue par le permis (2025) :
Rez-de-chaussée :
Une Pièce de vie d’environ 42 m² avec cuisine ouverte et accès direct au jardin
Une chambre de 14 m²
Une Salle de bain avec WC  de 8,5 m²
Un Local technique / buanderie : 5 m²
Étage :
Un Hall de nuit desservant 2 chambres (±13 m² et ±8 m²)
Une Salle de douche : 3,8 m²

Extérieurs :
Emplacement de parking à l’avant
Allée carrossable latérale
Jardin exposé Nord-est à l’arrière

Documents disponibles sur demande ou à consulter à l’agence :

-Plans du géomètre
-Permis d’urbanisme obtenu en 2025
-Plans d’architecte liés au permis
-Rapport d’étude de faisabilité
-Déclaration et rapport PEB
-Notice d’évaluation des incidences sur l’environnement

Prix demandé : 110 000 €

Une belle opportunité à saisir pour un projet familial ou un investissement immobilier à Ath !

📞 Contact :
Pour plus d’informations ou pour organiser une visite, merci de nous contcater au 068333053 ou par mail à l'adresse info@yelo-immo.be

Informations générales
Type de bienterrain à bâtir
Localisation7800 Ath
Superficie terrain601 m²
R.C.8.00 €
Disponibleà l'acte
Energie
PEBen cours de réalisation
N° PEB
PEB / Espec
PEB / Etotale
Chauffage (énergie / type)non existant / non existant
Parking
Intérieur0
Extérieur0
Aménagement intérieur
Nb. chambres0
Services
Eau de villenon
Electriciténon
Gaznon
Télédistributionnon
Téléphonenon
Prix110000 €
Image Yelo Ath un autre regard sur l'immo
© 2025 Yélo Immo - all rights reserved
Agent immobilier agréé IPI, N° 510.599 octroyé en Belgique - WWW.IPI.BE